APPEL A MANIFESTATION D’INTERET
Place d’Haldenbourg – Cronenbourg
Introduction
Désireuse de soutenir des acteurs économiques variés dans le développement de leurs activités, tout en répondant à des besoins d’utilité publique et d’intérêt général, LOCUSEM engage un processus de sélection afin d’identifier un futur locataire pour un local commercial dont elle est propriétaire. Cette démarche vise à répondre aux besoins du territoire en favorisant l’implantation d’une offre de commerce ou de services jugée pertinente et porteuse de dynamisme local. Le présent appel à candidatures a pour vocation d’encourager les porteurs de projets à manifester leur intérêt pour le bien décrit ci-après.
I. Territoire d’implantation
Cronenbourg est un quartier de l’ouest de Strasbourg qui mêle habitat résidentiel, vie de quartier et zones d’activités. Il s’est engagé dans un vaste programme de rénovation urbaine qui vise à moderniser ses infrastructures et ses espaces publics. La rénovation de la place du marché, l’aménagement du parc de la Robertsau et l’amélioration de la sécurité ont donné un nouveau souffle au quartier, en offrant des espaces de détente et de promenade verdoyants, ainsi qu’un environnement plus sûr et agréable pour ses habitants. Cette dynamique apporte un vrai potentiel de développement pour les commerces et activités économiques. Bien desservi par le tram, le bus et proche des axes majeurs, Cronenbourg profite d’une accessibilité appréciable. C’est un quartier en transition, porté par des investissements importants, où l’installation d’un commerce peut réellement s’inscrire dans une stratégie de croissance et d’anticipation de la montée en gamme progressive du secteur.
Le projet présenté se situe à proximité immédiate de la place d’Haldenbourg, dans la tranche 2 d’une opération initiée par DOMIAL en 2014. Les commerces de la tranche 1 (opération Cronenbourg 1) appartiennent déjà à LOCUSEM.
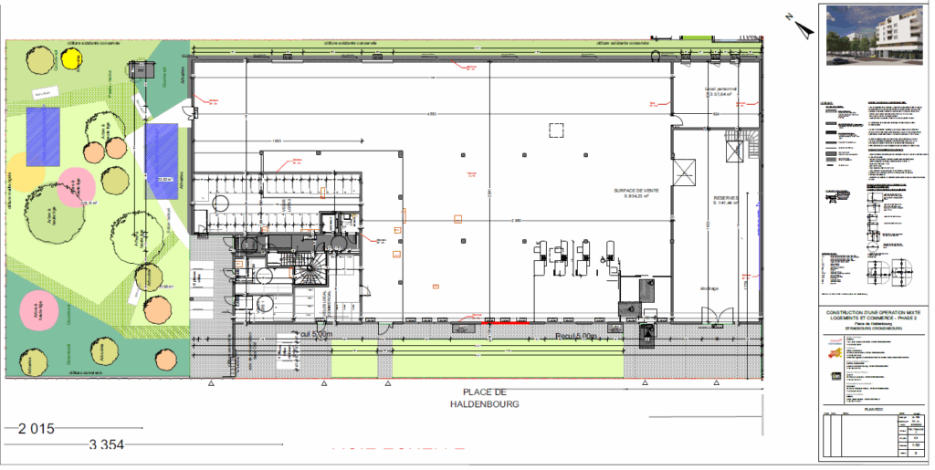
II. Caractéristiques du local commercial
Le local dispose d’une surface totale d’environ 1 150 m² de surface de plancher, livrée en brut de béton, et bénéficie d’un parking en sous-sol.
Répartition des surfaces
- Rez-de-chaussée :
- Surface de vente : 956 m²
- Locaux sociaux : 50 m²
- Réserve : 141 m²
- Local vélos
Cette configuration offre une surface complète et fonctionnelle, adaptée à une activité commerciale type supermarché.
III. Description du bail commercial
Les locaux s’inscrivent dans une opération neuve dont les travaux débuteront en avril 2026 pour une livraison au 1er T 2028.
Un bail commercial sera établi sous forme authentique pour une durée de dix (10) années entières et consécutives.
Conformément à l’article L.145-4 alinéa 2 du Code de commerce, et compte tenu de la durée du bail (supérieure à neuf ans), le preneur renonce expressément à la faculté de donner congé à l’expiration de la première période triennale. Le bail aura ainsi une durée ferme de six (6) années à compter de sa date d’effet.
Le loyer annuel prévisionnel s’élève à 110 000 € hors taxes et hors charges.
IV. Modalités de prise à bail
1. Conditions d’exploitation
La destination du local et les conditions d’exploitation seront étudiées afin de s’assurer que le futur preneur correspond au projet commercial envisagé.
L’analyse portera notamment sur :
- La compatibilité de l’activité avec le local, le quartier et la réglementation (urbanisme, sécurité) ;
- La solidité financière et administrative du candidat ;
- La pérennité du projet et sa cohérence avec les besoins du territoire.
Cette démarche vise à sécuriser l’investissement du bailleur et à garantir la réussite commerciale du local.
2. Travaux à la charge du preneur
Le local sera livré brut, fluides en attente et vitrines posées.
Le locataire prendra à sa charge l’ensemble des travaux d’aménagement et l’ensemble des démarches administratives (Autorisation Travaux ERP, autorisation Enseigne, demande d’autorisation auprès de l’ASL, etc…).
V. Candidatures
1. Composition du dossier
Chaque dossier devra comporter les éléments suivants :
- Un plan d’affaires ou une présentation de l’activité et de l’étude de marché
- Les trois derniers bilans de la société ou un prévisionnel financier sur 3 ans
- Un extrait Kbis ou un projet de statuts
- Une copie de la pièce d’identité du porteur de projet
Tout dossier incomplet ne sera pas étudié.
2. Modalités de dépôt
Les candidatures doivent être adressées par voie électronique sur l’adresse mail suivante : contact@locusem.eu
VI. Processus de sélection :
Le choix du candidat sera déterminé selon trois grands axes :
1. Qualité du projet commercial
- Attractivité et cohérence de l’offre
- Expérience du porteur de projet
- Adéquation avec les besoins du territoire
- Originalité et valeur ajoutée du concept
- Démarche environnementale
2. Viabilité économique
- Solidité financière
- Réalisme du prévisionnel d’activité
3. Pertinence technique
- Qualité des aménagements intérieurs et extérieurs envisagés


Dernières annonces
ATELIERS ARTISANAUX BISCHHEIM
Bischheim
Loyer mensuel HT : 815.00€ à 1061.00€
Surface : de 99m2 à 132m2
